budynek nr
3
2
poziom
2550,4m2
poziom
1
poziom
935,0m2
poziom
0
poziom
1096,0m2
poziom
suma
4 842 m2
0
poziom
1096,0m2
1
poziom
935,0m2
2
poziom
2550,4m2

Trzykondygnacyjny budynek biurowo-produkcyjny z reprezentacyjnym holem wejściowym wykonany w technologii szkieletowej żelbetowej

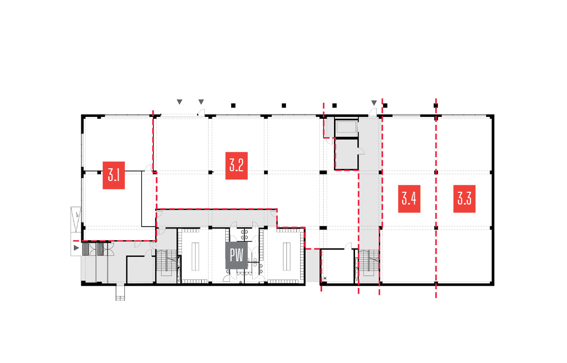
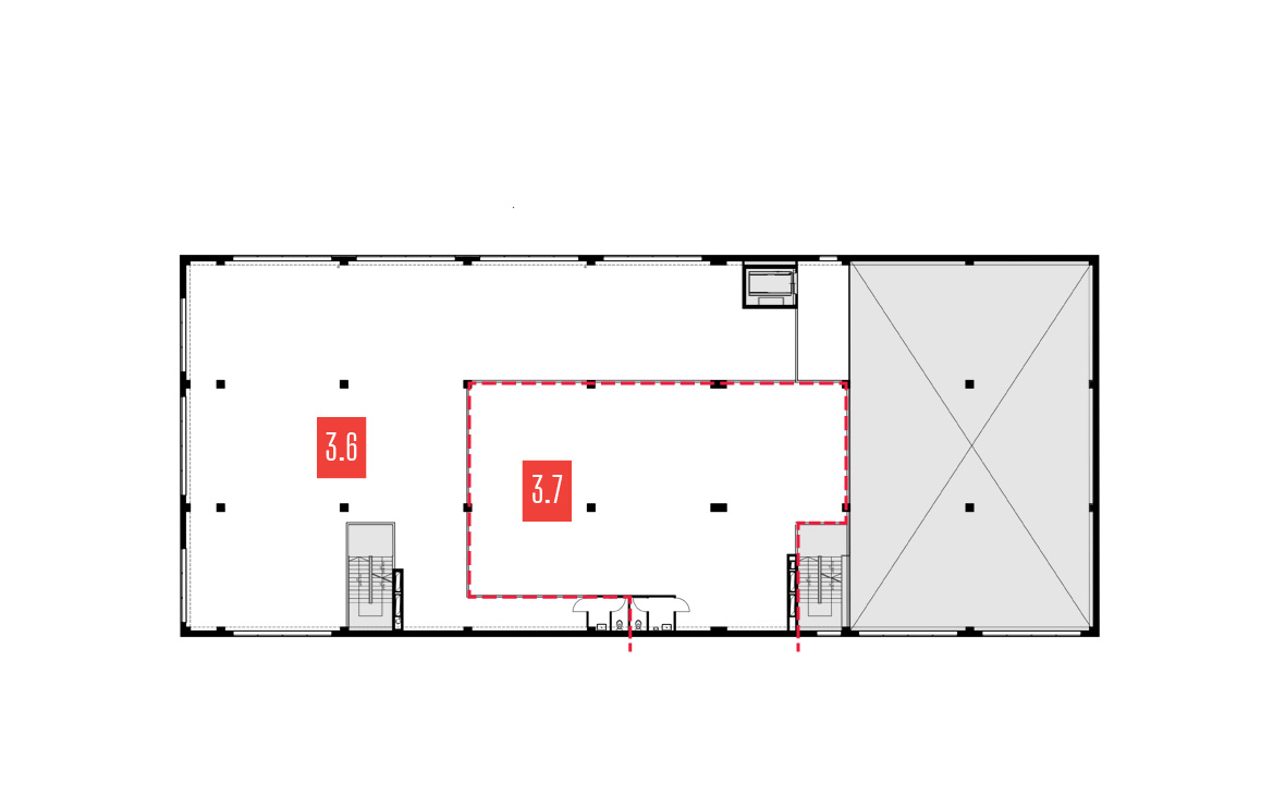
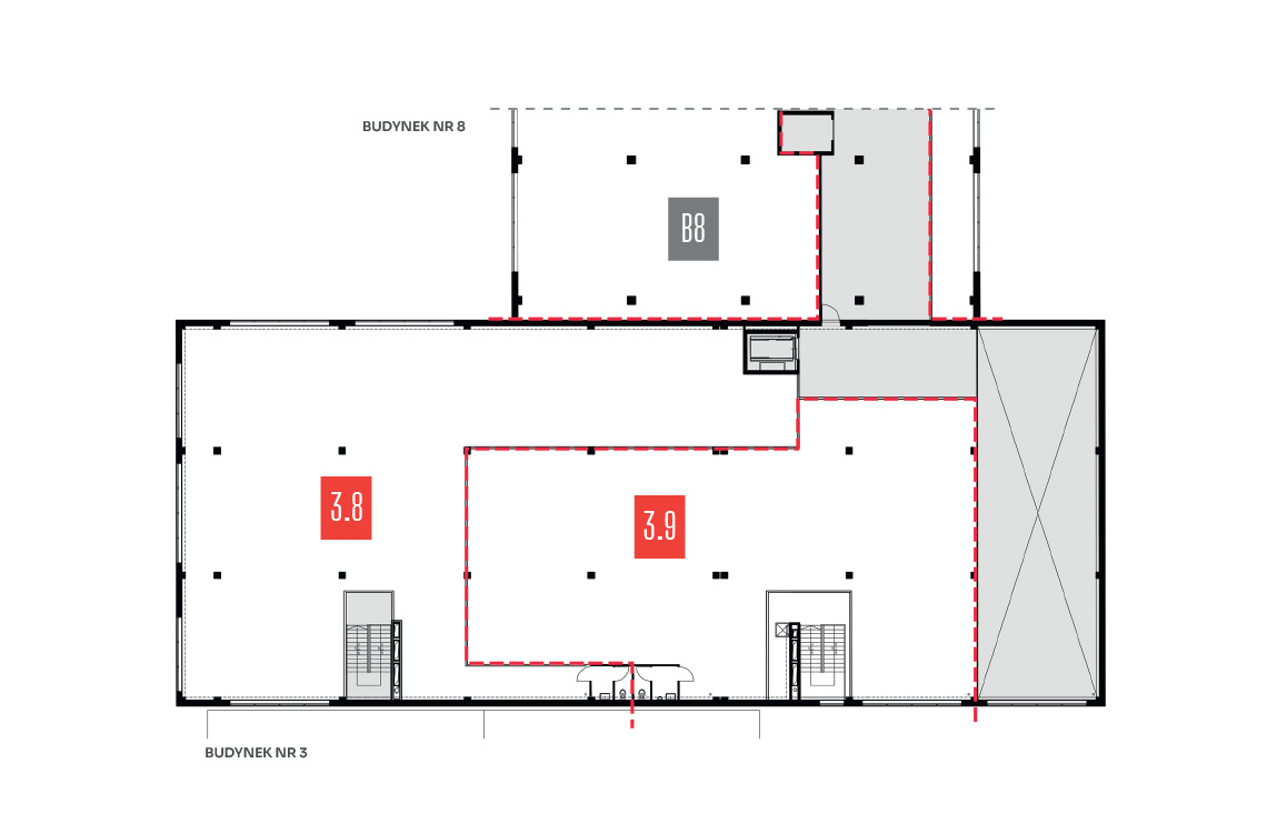
Budynek 3
Poziom
0 0
1 1
2 2
3.1
Przestrzeń biurowa
164,5 m2
3.2
Przestrzeń produkcyjna
405,0 m2
3.3
Przestrzeń produkcyjna
192,0 m2
3.4
Przestrzeń produkcyjna
192,0 m2
3.5
Szatnie i sanitariaty
142,5 m2
Suma
1096,0 m2
3.6
Hala produkcyjna
590,0 m2
3.7
Hala produkcyjna
345,0 m2
Suma
935,0 m2
3.8
Hala produkcyjna
590,0 m2
3.9
Hala produkcyjna
500,0 m2
Suma
2550,4 m2
rzut poziomu 0
rzut poziomu 1
rzut poziomu 2
wolne
wynajęte
przestrzeń wspólna