Budynki
Kontakt
+48 730 276 814
EN
powrót
pobierz ofertę budynku nr 8
budynek nr
8
2
poziom
2550,4m
2
1
poziom
1285,5m
2
0
poziom
893,5m
2
suma
4 934 m
2
0
poziom
893,5m
2
1
poziom
1285,5m
2
2
poziom
2550,4m
2
Budynek 8
Poziom
0
0
1
1
2
2
8.1
Przestrzeń biurowa
551,0 m
2
8.2
Przestrzeń biurowa
117,5 m
2
8.3
Przestrzeń produkcyjna
225,0 m
2
8.3
Szatnie i sanitariaty
m
2
Suma
893,5 m
2
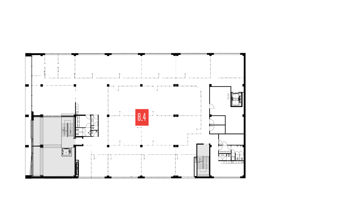
8.4
Przestrzeń laboratoryjno-biurowa
1285,5 m
2
Suma
1285,5 m
2
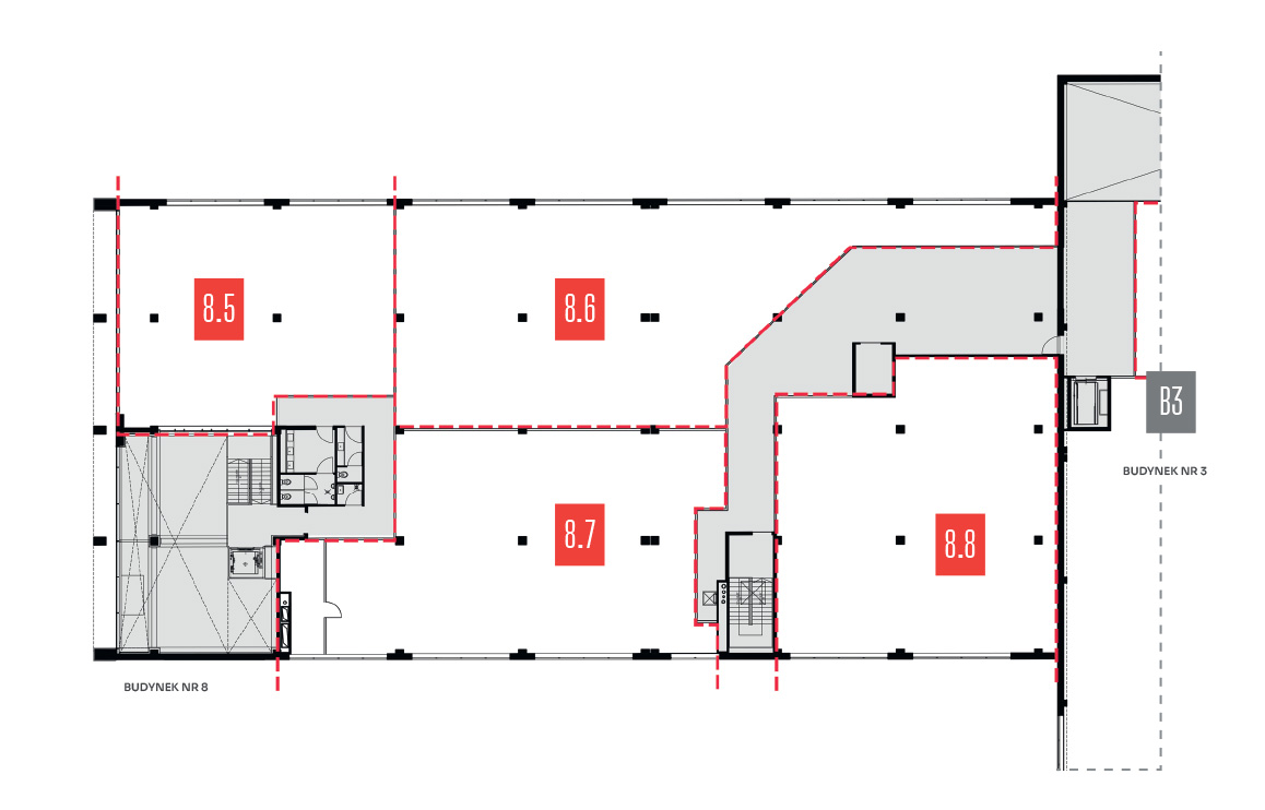
8.5
Pow. biurowa
241,0 m
2
8.6
Pow. produkcyjna
402,0 m
2
8.7
Pow. produkcyjna
350,0 m
2
8.8
Pow. produkcyjna
334,0 m
2
Suma
2550,4 m
2
wolne
wynajęte
przestrzeń wspólna
Galeria
krakowska 390
zabierzów
1
—
5
Budynek DTWE 8.
Widok na fasadę budynku od strony ulicy Krakowskiej.
2
—
5
Budynek DTWE 8.
Widok na fasadę budynku od strony ulicy Krakowskiej.
3
—
5
Budynek DTWE 8.
Widok na fasadę budynku od strony ulicy Krakowskiej.
4
—
5
Budynek DTWE 8.
Widok na fasadę budynku od strony ulicy Krakowskiej.
5
—
5
Budynek DTWE 8.
Widok na fasadę budynku od strony ulicy Krakowskiej.
zmień budynek
1
1
2
2
3
3
4
4
5
5
6
6
7
7
8
8
Zamknij
wybierz budynek
1
1468,5 m
2
1 poziom
2
2375,5 m
2
1 poziom
3
4 842 m
2
3 poziomy
4
335,13 m
2
3 poziomy
5
320 m
2
2 poziomy
6
1541,5 m
2
1 poziom
7
budynek stacji
transformatorowych
8
4 934 m
2
3 poziomy